スタイリッシュな空間演出を可能にする
スタイルEドア

スタイリッシュな空間演出を可能にするフラット構造
スタイルEドアは、特殊金具を採用し内側に軸吊ヒンジを設けることで従来の点検用ドアから枠と丁番をなくし、
躯体とドアがフラットになる構造を実現した、スタイルシリーズの次世代型点検用ドアです。
CO2削減、資源の低減に配慮した特許技術
点検用ドアから枠をなくす特殊金具を考案。特殊金具と軸吊ヒンジを使用し化粧鋼板を採用する事でスチール使用量の削減につなげました。
また、モルタル、ペンキ、溶剤、塗装工程が不要になり、軽量化も実現。搬入輸送と荷上げコストの低減を可能にしました。
特別な技術は不要かんたん施工
設置はいたってシンプル。
センターゲージを使用して躯体開口部のセンターに特殊金具を設置。
スタイルEドアの軸吊ヒンジを特殊金具にセットして完了です。専門知識が必要な作業工程が無く、簡単に設置していただけます。
100戸の集合住宅で考える資源の削減量
CO2削減、資源の低減率
Color variationカラーバリエーション
スタイルEドアの扉カラー標準色は、給湯器 設置型が3色、給湯器 非設置型が22色。
スタイルEドアと玄関ドア(日本フネン株式会社製)や住戸専用宅配ボックス スタイルT-BOX の面材を揃え、集合住宅の廊下をトータルコーディネートすることが可能です。
給湯器 設置型 (3色)
メタリックゴールド
(FU745)
メタリックグレー
(FU746)
メタリックブラウンS
(FU748)
給湯器 非設置型 (22色)
メタリックゴールド
(FU745)
メタリックグレー
(FU746)
メタリックブラウンS
(FU748)
アイボリーA
(FU911)
ブラウンA
(FU913)
ブラックA
(FU914)
ネイビーA
(FU915)
ホワイトA
(FU916)
ワインカラーA
(FU917)
ウイルライト
(FU803)
ウイルダスク
(FU804)
スタイリッシュグレー
(FU131)
シルバーライン
(FU992)
ゴールドウッドY
(FU993)
サンドグレー
(FU807)
ローズオーク
(FU850)
タンオーク
(FU851)
カリンG
(FU994)
カリンR
(FU995)
イサテージP
(FU120)
イサテージC
(FU121)
ウォールナット
(FU996)
※掲載している色柄見本は、実物と若干異なります。
specs商品仕様
給湯器 設置型
| タイプ |
シングルタイプ |
ダブルタイプ |
| 姿図(共用廊下側より) |
 |
 |
| 扉 |
WxH:653 x 1,900 ㎜ |
WxH:1,188 x 1,900 ㎜ |
| 板厚:0.8 ㎜ |
| 扉厚:35 ㎜ |
| 扉重量 |
10 ㎏ |
| 材質 |
化粧鋼板 |
| 通風口 |
上:118 cm3 下:118 cm3 |
給湯器 非設置型
| タイプ |
シングルタイプ |
ダブルタイプ |
| 姿図(共用廊下側より) |
 |
 |
| 扉 |
WxH:653 x 1,900 ㎜ |
WxH:1,188 x 1,900 ㎜ |
| 板厚:0.6 ㎜ |
| 扉厚:35 ㎜ |
| 扉重量 |
7 ㎏ |
| 材質 |
化粧鋼板 |
| 通風口 |
上:118 cm3 下:118 cm3 |
Plan商品図面
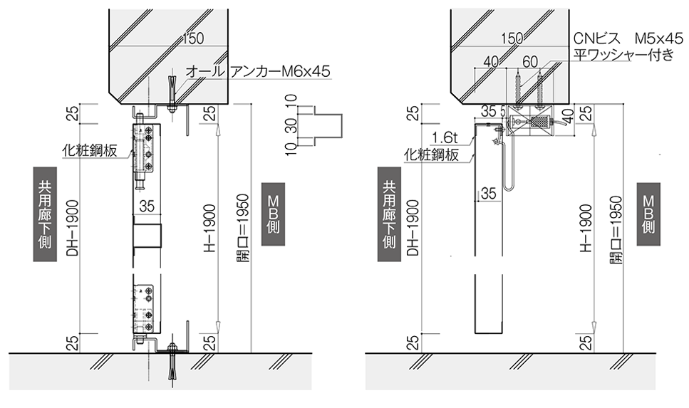
断面図(縦)
※特記なき限り材質 スチール(化粧鋼板)とする
注:スタイルE ドアのDW・DH は変更できません。
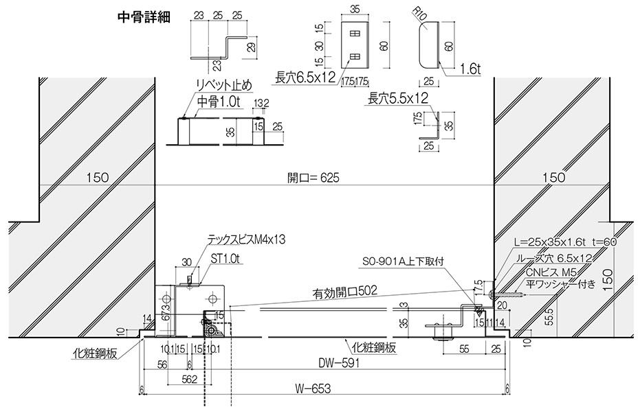
断面図(横)外廊下タイプ
(※中廊下タイプもございます)
※特記なき限り材質 スチール(化粧鋼板)とする
シングルタイプ
ダブルタイプ
注:ALC・LGS にも取付可能
Partnerパートナー募集
協業して頂けるパートナー企業様を募集
CO2削減、資源の低減に配慮した次世代型点検ドアのシェア拡大で共に発展・成長に向けた企業活動をいただけるパートナー企業様を募集いたしております。
貴社ビジネスのさらなる成長のために、私たちがご協力いたします。
お問い合わせ
MOVIE
スタイルEドアが叶える
「デザインがつなげる未来」を動画でご紹介します。

Style E-DOOR の資料は下記よりダウンロードください
資料ダウンロード